Masz konto na Facebooku? Jeśli chcesz pomóc w rozwoju darmowego serwisu ogłoszeniowego możesz
udostępnić Wystawiaj.pl oraz obserwować/polubić nasz profil FB - dziękujemy!

Domy deweloperskie Osiedle Spacerowe Brzeźnio

Cena: 540 000 zł / dom
do negocjacji

DOMY DEWELOPERSKIE- BRZEŹNIO

BRZEŹNIO OSIEDLE SPACEROWE

Szukasz swojego wymarzonego domu?

Biuro Piotrowski Nieruchomości zaprasza Państwa na prezentację domów parterowych w stanie deweloperskim w pierwszym etapie budowy osiedla.

 

Domy w zielonej lokalizacji w miejscowości Brzeźnio

 

Zaczynamy sprzedaż I etap – 7 domów.

 

Działki ok. 1400 m.kw.

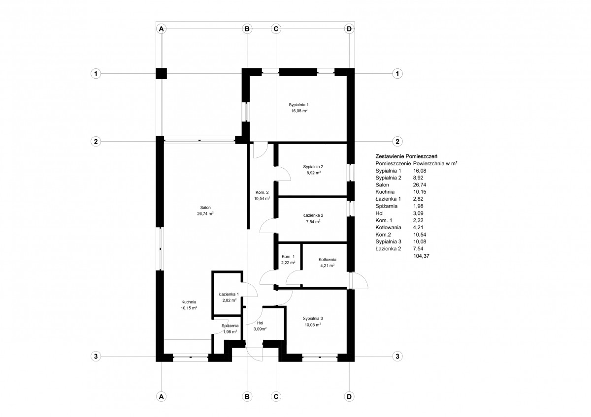
Powierzchnia zabudowy 145,9 m.kw. powierzchnia użytkowa domu 104,37 m.kw.

 

W skład pomieszczeń wchodzi:

- duży nasłoneczniony salon połączony z otwartą kuchnią,

- spiżarnia,

- 3 sypialnie,

- łazienka,

- wc,

- wiatrołap,

-pomieszczenie gospodarcze (kotłownia),

 

Atuty nieruchomości:

- funkcjonalny układ pomieszczeń na jednej kondygnacji,

- materiały użyte do budowy- ściany z ceramiki kozłowickiej, ocieplenie styropian grafitowy 15 cm, dach pokryty blachodachówką Futura, stolarka okienna trzyszybowa Kris-Pol, rolety zewnętrzne, drzwi zewnętrzne KMT,

- instalacje elektryczne, hydrauliczne- ogrzewanie podłogowe,

- tynki cementowo-wapienne, posadzki maszynowe,

- piękna okolica,

- tereny zielone, las na wyciągnięcie ręki,

- odległość od centrum Brzeźnia ok. 1 km, centrum Sieradza ok. 15 km.

- dojazd do osiedla nową nawierzchnią asfaltową,

 

 

CENA OFERTOWA:  540 000 ZŁ

 

Jesteśmy dla Was dostępni po godzinach pracy biura oraz w weekendy!

 

Skorzystaj z bezpłatnych konsultacji naszych doradców kredytowych.

 

Zainteresował Cię ta oferta?

Zadzwoń i umów się na prezentację, do zobaczenia.

 

Nie zapomnij obserwować naszej strony na FACEBOOK: www.facebook.com/sieradz.piotrowski

 

WYNAGRODZENIE BIURA POKRYWA SPRZEDAJĄCY.

 

Opiekun oferty:

 

Wojciech Piotrowski

Tel. 502 249 200

 

———————————————

PIOTROWSKI NIERUCHOMOŚCI

 

ul. Aleja Grunwaldzka 2A, 98-200 Sieradz

(pawilon obok restauracji Mcdonald’s)

 

e-mail: biuro@piotrowskinieruchomosci.com.pl

www.piotrowskinieruchomosci.com.pl

 

 

 

 

 

Nie tego szukasz? Przejrzyj inne oferty z tej kategorii (NieruchomościDomyParterowe). Możesz też zawsze przejść na stronę główną lub skorzystać z wyszukiwarki.

Ostatnie zmiany: 16.10.2025 14:31
Wygasa za 21 dni
Rozpoczęcie: 16.10.2025, 14:28, zakończenie: 07.01.2026, 09:58

Oferta jest już nieaktualna? Być może zawiera nieprawidłowo oznaczoną lokalizację, błędny numer telefonu czy w inny sposób narusza regulamin? Zgłoś nam ten problem - oferta zostanie sprawdzona w pierwszej kolejności!


_PIOTROWSKI_

 502 [pokaż]

Lokalizacja

  • Brzeźnio (gmina Brzeźnio)