Masz konto na Facebooku? Jeśli chcesz pomóc w rozwoju darmowego serwisu ogłoszeniowego możesz
udostępnić Wystawiaj.pl oraz obserwować/polubić nasz profil FB - dziękujemy!

III ETAP NOWE OSIEDLE REYMONTA

Cena: 595 000 zł / dom

Zapraszamy do oglądania, rezerwacji i zakupu domków jednorodzinnych w zabudowie szeregowej 6 segmentowej w Sieradzu, przy ulicy Przejazd z bezpośrednim skomunikowaniem z ulicą Podmiejską i Reymonta o powierzchni 96,12 m2

Budynki są o różnych stanach zaawansowania na kolejnych zadaniach.

Zaprojektowaliśmy tu domki o powierzchni 96,12m2, każdy oddzielony od sąsiadów podwójną ścianą (2x25cm) i działką z własną księga wieczystą.

 

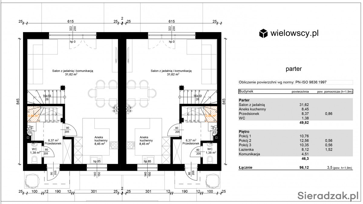
Parter:                             49,82m2

- Salon z jadalnią              31,62m2

- Aneks kuchenny               8,45m2

- Przedsionek                     8,37m2

- WC                                 1,38m2

 

Piętro:                             46,30m2

- Pokój 1                          10,76m2

- Pokój 2                          12,56m2

- Pokój 3                          10,35m2

- Łazienka                          8,12m2

- Komunikacja                    4,51m2

 

 

Powierzchnia działek: środkowej – 202m2, skrajnej (między segmentami) – 305m2, skrajna zewnętrzna – 611m2.

Działka z przodu od ulicy ma 8,5m, z tyłu 12,5m, posiada miejsce na śmietniki miejsce postojowe z możliwością dobudowy drugiego miejsca postojowego. Całość przylega bezpośrednio do ulicy gminnej o szerokości 8m. z możliwością wygospodarowania dodatkowego pasa postojowego wzdłuż ulicy z uwagi na jednostronną zabudowę. Dojście, opaski i podjazdy utwardzone z kostki brukowej. Całość działki ogrodzona.

Wykonane sieci wraz z przyłączami: wodociągowa, kanalizacyjna, gazowa, elektryczna i kanalizacja światłowodowa.

Ściany zewnętrzne z pustaków ceramicznych, ocieplone styropianem 18 cm., wykończone tynkiem strukturalnym.

Okna trójszybowe PCV od strony zewnętrznej w kolorze drewnopodobnym o niskim współczynniku przenikania ciepła. Drzwi wejściowe antywłamaniowe w kolorze drewnopodobnym o dobrym współczynniku ciepła i izolacji akustycznej. Okna połaciowe drewniane o dobrym współczynniku przenikania ciepła.

Ścinaki działowe ceramiczne, tynki wewnętrzne gipsowe, podłoża pod posadzki z warstwami izolacji przeciwwodnej/przeciwwilgociowej, izolacja akustyczna i ocieplenie z rozprowadzonymi przewodami instalacji multimedialnej (światłowodowa i telewizyjna).

Na całości rurarz pod ogrzewanie podłogowe zakończone wylewką betonową zbrojoną gotową do montażu wierzchniej warstwy podłogi.

Sufity nad drugą kondygnacją z dwóch płyt gipsowo–kartonowych ognioodpornych od strony dachu z warstwą paroizolacji, ocieplenie z wełny mineralnej gr. 25cm. i warstwy z folii parowentylacyjnej o dobrym współczynniku przenikania.

Wykonane instalacje wewnętrzne podtynkowe: elektryczna (światłowodowa i telewizyjna) z rozprowadzeniem do poszczególnych pomieszczeń, wodociągowa i kanalizacyjna z podejściem do poszczególnych pomieszczeń: kuchni, łazienki i wc, grzewcza: cw i co (ogrzewanie podłogowe we wszystkich pomieszczeniach z podejściem pod grzejnik, w łazience z szafkami rozdzielaczy i piecem kondensacyjnym dwufunkcyjnym z zamkniętą komorą spalania z możliwością zastąpienia gazu pompą ciepła).

Cena budynku wraz z gotową księgą wieczystą, wszystkimi mediami, ogrodzona z kompletem utwardzeń.

 

Całość w wersji wykończonej jak wyżej oferujemy za cenę: 595 tys. zł. segment środkowy, 612 tys. zł. segment skrajny.

Istnieje możliwość rezerwacji, uczestnictwa w zakresie robót wykończeniowych i wprowadzenia możliwych korekt.

 

Zapraszamy do oglądania i rezerwacji. Istnieje możliwość wprowadzania dopuszczalnych zmian w robotach wykończeniowych.

   

 

 

 

Nie tego szukasz? Przejrzyj inne oferty z tej kategorii (NieruchomościDomyBliźniaki i szeregowe). Możesz też zawsze przejść na stronę główną lub skorzystać z wyszukiwarki.

Ostatnie zmiany: 17.11.2025 14:01
Wygasa za 29 dni
Rozpoczęcie: 11.10.2023, 10:23, zakończenie: 17.12.2025, 13:59

Oferta jest już nieaktualna? Być może zawiera nieprawidłowo oznaczoną lokalizację, błędny numer telefonu czy w inny sposób narusza regulamin? Zgłoś nam ten problem - oferta zostanie sprawdzona w pierwszej kolejności!


BUMA_Sieradz

 438 [pokaż]

Lokalizacja

  • Sieradz (gmina Sieradz)