Masz konto na Facebooku? Jeśli chcesz pomóc w rozwoju darmowego serwisu ogłoszeniowego możesz
udostępnić Wystawiaj.pl oraz obserwować/polubić nasz profil FB - dziękujemy!

Nowe mieszkanie 30m2 w nowym budynku

Oferta wycofana (nieaktualna)!

Cena: 1 850 zł / miesiąc

Do wynajęcia świeżo  urządzone mieszkanie w nowym budynku w urokliwej i spokojnej części Sieradza. (ul. Dominikańska 1)

Wolne od lipca 2025  lub połowy czerwca (do uzgodnienia) 

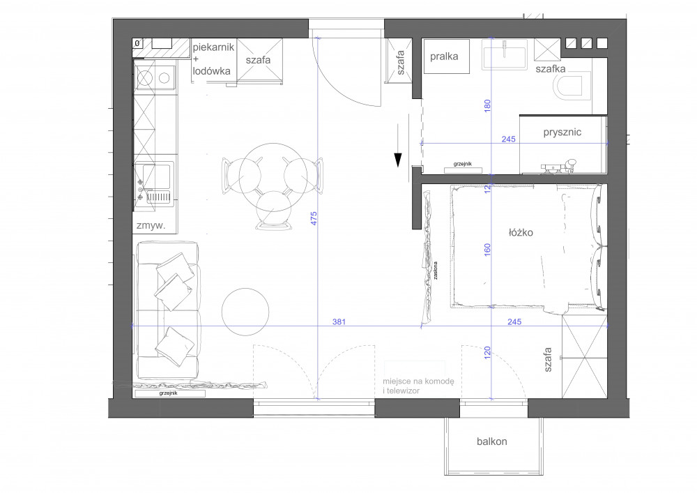
Mieszkanie o powierzchni 30 m2, z balkonem , zlokalizowane  na 2.  Piętrze kameralnego, zadbanego budynku oddanego do użytkowania w 2020r. Budynek posiada prywatne patio z bramą na pilota, rowerownią i  urządzoną zielenią .

Wokół budynku znajdują się liczne miejsca postojowe oraz ogólnodostępne  parkingi .

Mieszkanie jest gotowe do zamieszkania , kompletnie urządzone. 

Składa się z pokoju dziennego z aneksem kuchennym,  sypialni, łazienki oraz balkonu. Urządzone zostało funkcjonalnie z dbałością o estetykę,  z  zapewnieniem dużej ilości miejsca do przechowywania ( pojemne szafy na wymiar). 

Kuchnia jest w pełni wyposażona ( zmywarka, piekarnik, płyta elektryczna, lodówka z zamrażalnikiem). Dzięki zabudowom na wymiar kryjącym sprzęty agd kuchnia  wygląda estetycznie i nowocześnie. Jest pojemna i funkcjonalna.

W części dziennej  znajduje się   sofa , stoliki kawowe oraz okrągły stół z krzesłami.

W sypialni znajduje się łóżko o szer. 160cm , regał na książki , pojemna szafa na wymiar z lustrem  oraz wyjście na balkon.  Kolejne dwie szafy na wymiar znajdują się w strefie wejściowej do mieszkania.

Atutem mieszkania są ogromne okna  , co czyni je jasnym i nowoczesnym. Wszystkie skrzydła można otworzyć i w ciepłe dni poczuć się jak na tarasie z widokiem na dachy starego miasta i wzgórze zamkowe.

W łazience znajduje się pralka, wygodny, nowoczesny prysznic typu „walk in”, duza szafka na kosmetyki. 

Lokal przystosowany jest dla komfortowego zamieszkania dla singla lub pary. 

Koszty:

Odstępne -1850 zł /miesiąc

Czynsz : 380zł przy 2 osobach ( w tym  zaliczki na wszystkie media oprócz prądu, koszt prądu 80-100zł/ miesiąc przy 2 osobach )  

Kaucja zwrotna : 4000 

Forma najmu : najem okazjonalny na minimum na rok ( konieczne jest  oświadczenie najemcy podpisywane u notariusza )

Okolica : mieszkanie położone jest w kameralnej, historycznej części miasta. W bliskim sąsiedztwie bulwarów nad rzeką oraz parku miejskiego. Świetna lokalizacja dla osób lubiących spacery lub biegaczy.  Na ul. Dominikańskiej ruch kołowy jest ograniczony, więc jest tam cicho i spokojnie.  W okolicy znajdują się liczne restauracje i punkty gastronomiczne , teatr miejski , muzeum. Blisko jest sąd, urząd miasta, starostwo powiatowe oraz sklepy : żabka, biedronka, Leroy merlin, Jysk.  

Zapraszam do kontaktu telefonicznego oraz na prezentację mieszkania. Tel. 795 236 927

Nie tego szukasz? Przejrzyj inne oferty z tej kategorii (Usługi i WynajemNieruchomościWynajem mieszkańM3 (2 pokoje + kuchnia)). Możesz też zawsze przejść na stronę główną lub skorzystać z wyszukiwarki.

Rozpoczęcie: 15.06.2023, 13:27, zakończenie: 30.06.2025 18:25

Oferta jest już nieaktualna? Być może zawiera nieprawidłowo oznaczoną lokalizację, błędny numer telefonu czy w inny sposób narusza regulamin? Zgłoś nam ten problem - oferta zostanie sprawdzona w pierwszej kolejności!


iwonka206

 795 [pokaż]

Lokalizacja

  • Sieradz (gmina Sieradz)